Immobiliare Duemme

call +390498717408 location_on Via Chiesanuova, 237/bis Padova (Veneto) mail info@duemme.it

Casa Bi/Trifamiliare a Albignasego

location_on Albignasego (Veneto)

€ 335.000

Riferimento: MLS1109-1213

Dettagli

Tipologia: Casa Bi/Trifamiliare
Tipo contratto:
Vendita
Città: Albignasego
Locali: 6
Bagni: 2
Camere: 4
Superficie: 250
Anno: 1970
Stato immobile: Abitabile
Classe Energetica: 190.37

Ambienti

check Balconi
check Terrazzo
check Giardino - Mq: 500
check Box
check Posti auto scoperti

Caratteristiche

check Aria condizionata
check Ripostiglio

Descrizione

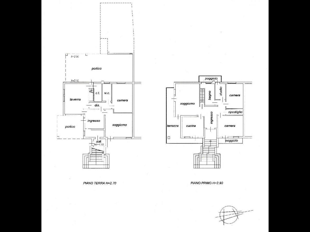
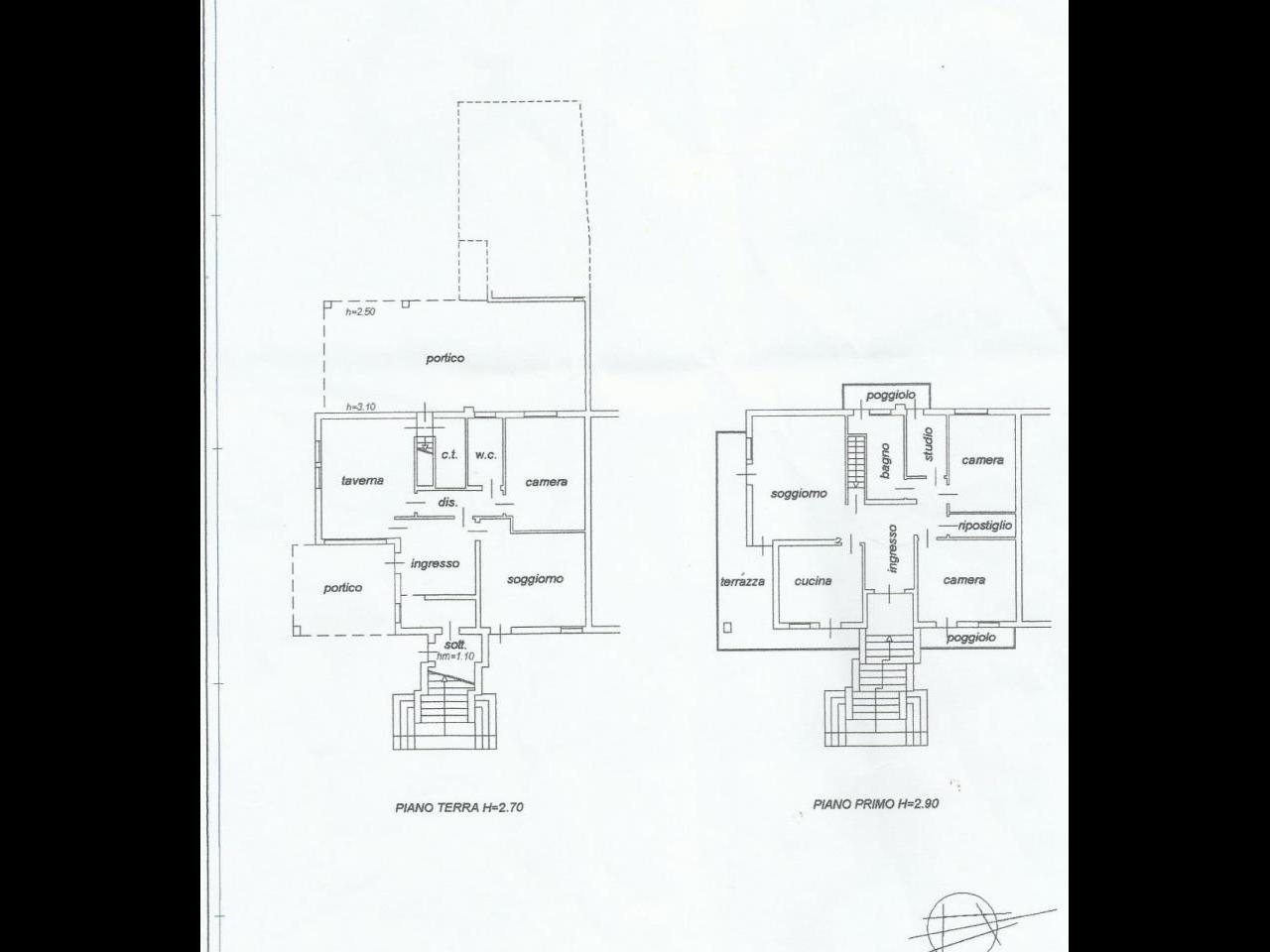
Immobile in esclusiva al Gruppo Padova MLS. Immobile in esclusiva al Gruppo Padova MLS Albignasego - in centro al quartiere di San Tommaso proponiamo introvabile porzione di bifamiliare con ampio scoperto privato, circa 500 mq di giardino, totalmente indipendente. L'immobile attualmente adibito ad unica abitazione ma può essere diviso in due unità. Ideale per genitori/figli .Dispone infatti di un accesso al piano terra ed uno al piano primo con scala indipendente . I due livelli sono uniti da scala interna . Al piano terra, troviamo un meraviglioso portico esterno da cui si accede all'ingresso , soggiorno cottura , 2 stanze , wc, lavanderia ed una spaziosa taverna riscaldata dotata di un ulteriore cucina di circa 40 mq chiusa da una vetrata apribile . Al piano primo dotato di un accesso autonomo con scala esterna troviamo ingresso, cucina, ampio soggiorno, 2 camere, un bagno e studio( facilmente in 3 comode camere) ,una terrazza avvolgente e 2 poggioli. A completare il tutto un garage doppio e diversi posti auto interni. D. Perchè vedo che la pubblicità di questo immobile è inserita anche da altre agenzie? R. Semplice e trasparente : Questo è un immobile provvisto di regolare incarico da parte del venditore conferito a una sola agenzia del gruppo Padova MLS, che grazie all'esclusivo metodo di collaborazione consente, a tutte le agenzie aderenti, di ampliare e potenziare la visibilità dello stesso. Tale attività è debitamente regolamentata tra l'agenzia detentrice del mandato da parte del Venditore e le agenzie autorizzate a proporlo. D. Cosa cambia quindi per chi cerca casa? R. Grazie a questo servizio il cliente potrà ricercare senza limiti territoriali la casa desiderata con l'assistenza di un UNICO INTERLOCUTORE, che potrà aiutarlo e consigliarlo nella scelta tra TUTTI gli immobili disponibili nella rete di agenzie che si avvalgono di questo sistema di lavoro, riducendo i tempi di una affannosa ricerca e di continua richiesta di informazioni, e il venditore vede amplificata la promozione del suo immobile. D.Perché vedo che la pubblicità di questo immobile è inserita anche da altre agenzie ? R. Semplice e trasparente: Questo è un immobile provvisto di regolare incarico da parte del venditore conferito a una sola agenzia del gruppo Padova Mls, che grazie all'esclusivo metodo di collaborazione consente, a tutte le agenzie aderenti, di ampliare e potenziare la visibilità dello stesso. Tale attività è debitamente regolamentata tra l'agenzia detentrice del mandato da parte del Venditore e le agenzie autorizzate a proporlo. D. Cosa cambia quindi per chi cerca casa? R. Grazie a questo servizio il cliente potrà ricercare senza limiti territoriali la casa desiderata con l'assistenza di un UNICO INTERLOCUTORE, che potrà aiutarlo e consigliarlo nella scelta tra TUTTI gli immobili disponibili nella rete di agenzie che si avvalgono di questo sistema di lavoro, riducendo i tempi di una affannosa ricerca e di continua richiesta di informazioni, e il venditore vede amplificata la promozione del suo immobile.

Planimetrie

Localizzazione

STAI CERCANDO DI VENDERE CASA?

Affidaci l'incarico e ci penseremo noi.

call

CHIAMACI ORA

+390498717408

L'immobile è stato aggiunto ai preferiti.
arrow_upward