Immobiliare Duemme
location_on Monselice (Veneto)
 533.93/m³ anno
533.93/m³ anno
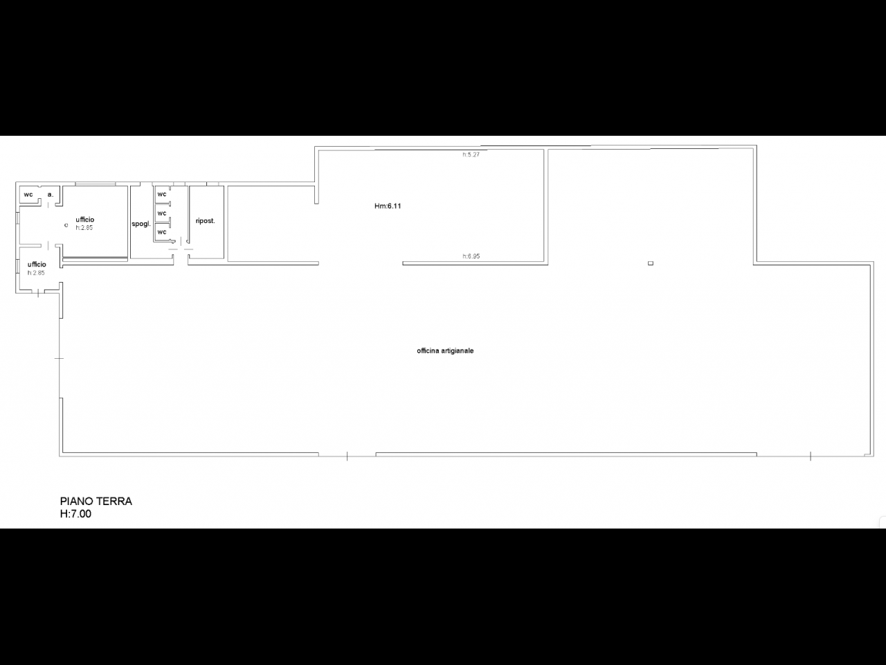
                                        Vendesi a Monselice capannone ad uso industriale (accatastamento D/7) di 1.200 mq più uffici ed un appartamento di circa 90 mq, il tutto insistente su un lotto di oltre 2.500 mq. Il fabbricato dispone di impianto fotovoltaico e tre carroponti. L'immobile si presenta in buone condizioni d'uso e manutenzione, ampliato nel 2010. Il complesso si trova in posizione comoda ai servizi ed alla viabilità: dista circa 500 metri dalla Strada Regionale 104 che collega Monselice al mare, 2 km dalla strada Statale 16 Adriatica e 4 km dall'Autostrada A13 Padova-Bologna (casello Monselice).
Affidaci l'incarico e ci penseremo noi.
CHIAMACI ORA